- Lokacija:
- Knežija, Trešnjevka - Jug
- Transakcija:
- Za najam
- Vrsta nekretnine:
- Poslovni prostor
- Ukupan broj prostorija:
- 2
- WC:
- 1
- Kat:
- Prizemlje
- Cijena:
- 500 €
- Površina:
- 23 m2
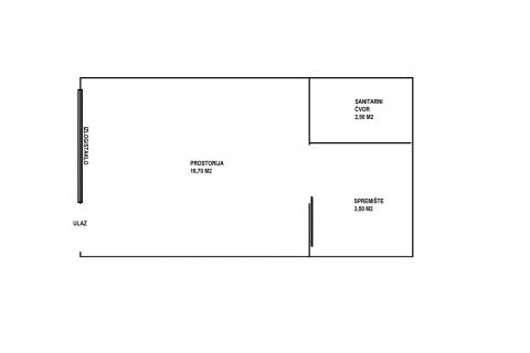
RE/MAX Centar nekretnina iz svoje ponude izdvaja poslovni prostor za zakup na Knežiji veličine 23 m2 u prizemlju poslovno-stambene zgrade Horvaćanska - Selska.
Prostor je namijenjen za razne vrste tihih djelatnosti i daje se u zakup na minimalno godinu dana.
Sastoji se od jedne veće, jedne manje prostorije i toaleta. Sve režije plaćaju se dodatno, polog u visini jedne mjesečne zakupnine.
Izvrsna, prometna lokacija u neposrednoj blizini kafića, trgovina, javnog prijevoza i svih ostalih važnih sadržaja.
Agencijska provizija za zakupnika je u visini jedne mjesečne zakupnine + PDV.
Prostor je namijenjen za razne vrste tihih djelatnosti i daje se u zakup na minimalno godinu dana.
Sastoji se od jedne veće, jedne manje prostorije i toaleta. Sve režije plaćaju se dodatno, polog u visini jedne mjesečne zakupnine.
Izvrsna, prometna lokacija u neposrednoj blizini kafića, trgovina, javnog prijevoza i svih ostalih važnih sadržaja.
Agencijska provizija za zakupnika je u visini jedne mjesečne zakupnine + PDV.
Ostale prostorije
- Okućnica: nema okućnice
- Godina izgradnje: 1999 god.
- Nekretnina (stanje): dovršena
- Stil gradnje: klasičan
- Razred energetske učinkovitosti: E
- Lift: ne
- Pristup invalidima: da
- Nekretnina se prodaje/iznajmljuje: namještaj po dogovoru
- Namjena poslovnog prostora: Tiha djelatnost
- P.P. sa izlogom: da
- Pristup kamionima/šleperima: ne
- Struja: trofazna
- Parking: ne
- Natkriveni parking: ne
- Povlašteni parking: ne
- Garaža: ne
- Struja
- Voda
- Plin
- Pričuva
- Komunalije
- Centralno
- Klima uređaj
- Plin
- Voda
- Struja
- Plin
- Kanalizacija
- nema otvoren pogled
- Istok
- U blizini glavne ceste / autoputa
- U blizini javnog prijevoza
- U blizini škole/vrtića/igrališta
- U blizini trgovine
- U blizini bolnice
- U blizini crkve
