- Lokacija:
- Svetice, Maksimir
- Transakcija:
- Za najam
- Vrsta nekretnine:
- Poslovni prostor
- WC:
- 2
- Kat:
- Prizemlje
- Cijena:
- 3.000 €
- Površina:
- 195 m2
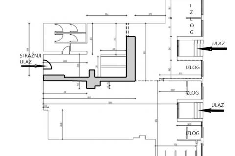
Ulica Svetice, preko puta stadiona, u prizemlju poslovno- stambene zgrade iznajmljuje se poslovni prostor.
Sastoji se od lokala u prizemlju veličine 195 m2 te skladišta u podrumu veličine 56 m2.
Lokal ima dva ulaza s prednje strane (ulica Svetice) sa izlozima te ulaz sa stražnje strane zgrade, također s izlogom po potrebi.
Visina stropa 3,80 m.
Agencijska provizija u visini jedne mjesečne najamnine + PDV.
Sastoji se od lokala u prizemlju veličine 195 m2 te skladišta u podrumu veličine 56 m2.
Lokal ima dva ulaza s prednje strane (ulica Svetice) sa izlozima te ulaz sa stražnje strane zgrade, također s izlogom po potrebi.
Visina stropa 3,80 m.
Agencijska provizija u visini jedne mjesečne najamnine + PDV.
Ostale prostorije
- Spremište
- Pripojene prostorije: skladište u podrumu
- Okućnica: nema okućnice
- Godina izgradnje: 1988. god.
- Nekretnina (stanje): dovršena
- Stil gradnje: moderan
- Razred energetske učinkovitosti: Izuzeto od obveze
- Lift: ne
- Pristup invalidima: uz manju adaptaciju
- Nekretnina se prodaje/iznajmljuje: nenamještena
- Visina plafona: 3,80 m
- Namjena poslovnog prostora: poslovni prostor
- P.P. sa izlogom: da
- Pristup kamionima/šleperima: ne
- Struja: monofazna
- Parking: ne
- Natkriveni parking: ne
- Povlašteni parking: ne
- Garaža: ne
- Struja
- Voda
- Grijanje
- Pričuva
- Komunalije
- Centralno
- Struja
- Voda
- Struja
- Kanalizacija
- Kabelska ili satelitska TV
- otvoren pogled
- Zapad
- Istok
- U blizini centra
- U blizini glavne ceste / autoputa
- U blizini javnog prijevoza
- U blizini škole/vrtića/igrališta
- U blizini trgovine
- U blizini bolnice
- U blizini crkve
